Leave a Message

Thank you for your message. I will be in touch with you shortly.

Explore Properties

Property Description

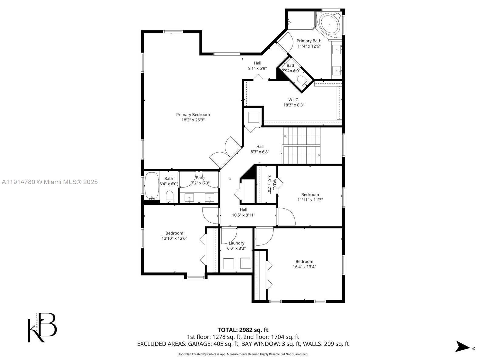
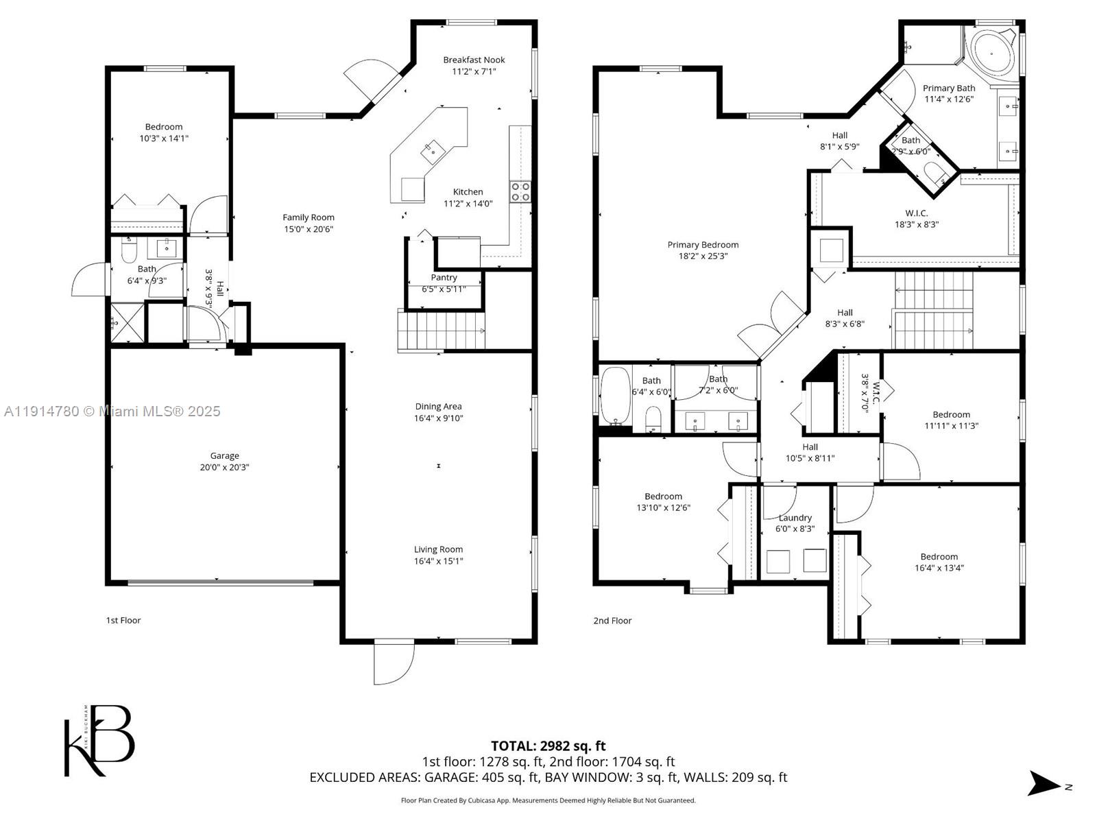
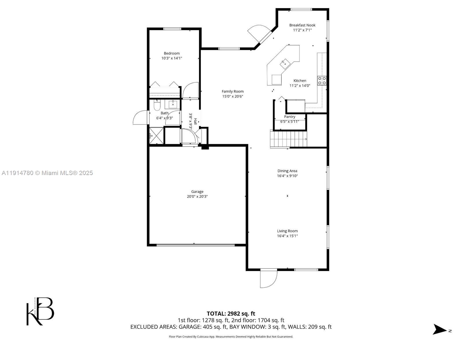
BEAUTIFULLY UPDATED 3,252 sf under air, 5-bed, 3-bath home featuring an ENORMOUS PRIMARY SUITE with a walk-in CLOSET TO MATCH, a spa-like bath with separate tub, shower and toilet room. One full bedroom and full bath downstairs offer ideal guest or multigenerational space. Enjoy modern upgrades throughout, including a smart thermostat, custom lighting, ceiling fans, and a separate laundry room. The kitchen boasts stainless steel appliances, while luxury oversized tile and vinyl flooring--NO CARPET--add style and durability. With a two-car garage, plus a large driveway and thoughtful finishes throughout, this home is truly move-in ready. FAST APPROVAL.

Overview

Property Status
Leased
Lot Size
5,000 Sq.Ft.
MLS ID
A11914780
Property Type
Residential
Year Built
2022

Features & Amenities

Stories
2
Garage Spaces
2.0
Water Source
Municipal Water
Parking
Guest
Heat Type
Central
Air Conditioning
Ceiling Fan(s), Central Air
Laundry Room
Utility Room/Laundry
Appliances
Dishwasher, Disposal, Dryer, Ice Maker, Microwave, Electric Range, Refrigerator, Washer
Other Interior Features
First Floor Entry, Volume Ceilings, Walk-In Closet(s), Den/Library/Office, Family Room, Separate Guest/In-Law Quarters, Utility Room/Laundry
Sewer
Sewer
Lease Price
$4,200/mo
Lease Term
1 MONTH
Zoning
3700

Downloads

22664 SW 130th Ave

Schedule a Tour

I would love to help you see this beautiful home! As a full-service brokerage, I can help you tour. Please submit an offer, and answer questions about the buying process.

Thank you

for your interest in 22664 SW 130th Ave, Miami, FL 33170

22664 SW 130th Ave
Navigate
22664 SW 130th Ave
explore in 3d

Browse My

Exlusive Listings

  • 10 Cannon Point For Sale

    $75,000,000

    10 Cannon Point, Key Largo, FL 33037

    • 12 Beds
    • 13 Baths
    • 5,221 Sq.Ft.
  • 10 Cannon Point For Sale

    $75,000,000

    10 Cannon Point, Key Largo, FL 33037

  • 43 Star Island Dr For Sale

    $48,000,000

    43 Star Island Dr, Miami Beach, FL 33139

    • 8 Beds
    • 11 Baths
    • 11,104 Sq.Ft.
  • 450 Alton Rd Unit: PH1 For Sale

    $47,500,000

    450 Alton Rd Unit: PH1, Miami Beach, FL 33139

    • 6 Beds
    • 8 Baths
    • 9,039 Sq.Ft.
  • 370 S Hibiscus Dr For Sale

    $34,900,000

    370 S Hibiscus Dr, Miami Beach, FL 33139

    • 5 Beds
    • 6 Baths
    • 10,754 Sq.Ft.
  • 1045 N Venetian Dr For Sale

    $19,995,000

    1045 N Venetian Dr, Miami, FL 33139

    • 6 Beds
    • 8 Baths
    • 6,347 Sq.Ft.
  • 284 Las Brisas Ct For Sale

    $14,900,000

    284 Las Brisas Ct, Coral Gables, FL 33143

    • 5 Beds
    • 5 Baths
    • 5,231 Sq.Ft.
  • 5700 SW 91st St For Sale

    $13,333,111

    5700 SW 91st St, Pinecrest, FL 33156

    • 8 Beds
    • 10 Baths
    • 8,105 Sq.Ft.
  • 1643 Brickell Ave Unit: PH4902 For Sale

    $12,950,000

    1643 Brickell Ave Unit: PH4902, Miami, FL 33129

    • 7 Beds
    • 10 Baths
    • 10,000 Sq.Ft.
  • 2627 S Bayshore Dr # 3001 For Sale

    $11,995,000

    2627 S Bayshore Dr # 3001, Miami, FL 33133

    • 5 Beds
    • 8 Baths
    • 6,920 Sq.Ft.
  • 11500 SW 60th Ave For Sale

    $11,950,000

    11500 SW 60th Ave, Pinecrest, FL 33156

    • 8 Beds
    • 9 Baths
    • 8,863 Sq.Ft.
  • 3860 Little Ave For Sale

    $11,895,000

    3860 Little Ave, Miami, FL 33133

    • 7 Beds
    • 9 Baths
    • 5,893 Sq.Ft.
  • 5796 SW 91 ST For Sale

    $10,995,000

    5796 SW 91 ST, Pinecrest, FL 33156

    • 7 Beds
    • 10 Baths
    • 8,805 Sq.Ft.
  • 350 Ocean Dr # 1202N For Sale

    $10,500,000

    350 Ocean Dr # 1202N, Key Biscayne, FL 33149

    • 4 Beds
    • 6 Baths
    • 3,369 Sq.Ft.
  • 5286 SW 80 Street For Sale

    $10,480,000

    5286 SW 80 Street, Miami, FL 33143

    • 7 Beds
    • 9 Baths
    • 7,512 Sq.Ft.
  • 16745 Berkshire Ct For Sale

    $10,475,000

    16745 Berkshire Ct, Southwest Ranches, FL 33331

    • 6 Beds
    • 8 Baths
    • 11,376 Sq.Ft.
  • 2355 N Meridian Ave For Sale

    $10,250,000

    2355 Meridian Ave, Miami Beach, FL 33140

    • 5 Beds
    • 6 Baths
    • 5,214 Sq.Ft.
  • 13580 SW 67th Ave For Sale

    $9,995,000

    13580 SW 67th Ave, Pinecrest, FL 33156

    • 8 Beds
    • 11 Baths
    • 11,626 Sq.Ft.
  • 2300 NE 34th Ct For Sale

    $9,990,000

    2300 NE 34th Ct, Lighthouse Point, FL 33064

    • 8 Beds
    • 9 Baths
    • 8,433 Sq.Ft.
  • 5280 SW 80th St For Sale

    $9,870,000

    5280 SW 80th St, Miami, FL 33143

    • 7 Beds
    • 7 Baths
    • 7,075 Sq.Ft.
  • 3940 S Douglas Rd For Sale

    $9,700,000

    3940 S Douglas Rd, Miami, FL 33133

  • 2497 Abaco Ave For Sale

    $9,695,000

    2497 Abaco Ave, Miami, FL 33133

    • 7 Beds
    • 9 Baths
    • 5,677 Sq.Ft.
  • 12505 Vista Ln For Sale

    $9,400,000

    12505 Vista Ln, Pinecrest, FL 33156

    • 7 Beds
    • 8 Baths
    • 7,500 Sq.Ft.
  • 4150 Loquat Ave For Sale

    $8,950,000

    4150 Loquat Ave, Miami, FL 33133

    • 6 Beds
    • 7 Baths
    • 5,792 Sq.Ft.
  • 30 Samana Dr For Sale

    $8,390,000

    30 Samana Dr, Coconut Grove, FL 33133

    • 5 Beds
    • 7 Baths
  • 5290 SW 80 Street For Sale

    $8,250,000

    5290 SW 80 Street, Miami, FL 33143

    • 6 Beds
    • 7 Baths
    • 6,361 Sq.Ft.
  • 1300 Monad Ter # 5F For Sale

    $8,150,000

    1300 Monad Ter # 5F, Miami Beach, FL 33139

    • 3 Beds
    • 5 Baths
    • 2,374 Sq.Ft.
  • 3470 Poinciana Ave For Sale

    $7,995,000

    3470 Poinciana Ave, Coconut Grove, FL 33133

    • 5 Beds
    • 7 Baths
    • 4,676 Sq.Ft.
  • 3506 Banyan Cir For Sale

    $7,800,000

    3506 Banyan Cir, Miami, FL 33133

    • 3 Beds
    • 5 Baths
    • 4,040 Sq.Ft.
  • 445 Ridgewood Rd For Sale

    $7,248,000

    445 Ridgewood Rd, Key Biscayne, FL 33149

    • 5 Beds
    • 6 Baths
    • 3,688 Sq.Ft.
  • Coral Gables For Sale

    $6,990,000

    350 Costa Brava Ct, Coral Gables, FL 33143

    • 6 Beds
    • 5 Baths
    • 5,938 Sq.Ft.
  • 5440 S State Road 7 Rd For Sale

    $6,900,000

    5440 S State Road 7 Rd, Hollywood, FL 33021

  • 7269 SW 54th Ave For Sale

    $6,900,000

    7269 SW 54th Ave, Unincorporated Dade County, FL 33143

    • 5 Beds
    • 7 Baths
  • 4700 Bay Point Rd For Sale

    $6,850,000

    4700 Bay Point Rd, Miami, FL 33137

    • 5 Beds
    • 4 Baths
    • 5,230 Sq.Ft.
  • 1509 NE 12th Pl For Sale

    $6,750,000

    1509 NE 12th Pl, Miami, FL 33139

    • 5 Beds
    • 7 Baths
    • 4,687 Sq.Ft.
  • 9601 Collins Ave # T3 For Sale

    $6,598,000

    9601 Collins Ave # T3, Bal Harbour, FL 33154

    • 3 Beds
    • 5 Baths
    • 4,044 Sq.Ft.
  • 12475 SW 56th St For Sale

    $5,999,999

    12475 SW 56th St, Miami, FL 33175

  • 300 Biscayne Blvd Way # 2501 For Sale

    $5,999,999

    300 Biscayne Blvd Way # 2501, Miami, FL 33131

    • 5 Beds
    • 6 Baths
    • 3,961 Sq.Ft.
  • 1096 N Venetian Dr Pending

    $5,995,000

    1096 N Venetian Dr, Miami, FL 33139

    • 4 Beds
    • 5 Baths
  • 300 Biscayne Blvd Way # 701 Pending

    $5,995,000

    300 Biscayne Blvd Way # 701, Miami, FL 33131

    • 4 Beds
    • 5 Baths
    • 3,438 Sq.Ft.
  • 650 NE 32nd St Unit: UPH5302 For Sale

    $5,900,000

    650 NE 32nd St Unit: UPH5302, Miami, FL 33137

    • 3 Beds
    • 3 Baths
    • 2,108 Sq.Ft.
  • 3581 E Glencoe St # 502 For Sale

    $5,675,000

    3581 E Glencoe St # 502, Miami, FL 33133

    • 3 Beds
    • 4 Baths
    • 2,978 Sq.Ft.
  • 1451 Brickell Ave Unit: LPH4902 For Sale

    $5,600,000

    1451 Brickell Ave Unit: LPH4902, Miami, FL 33131

    • 3 Beds
    • 3 Baths
    • 2,337 Sq.Ft.
  • 248 Tarpon St For Sale

    $5,595,000

    248 Tarpon St, Tavernier, FL 33070

    • 5 Beds
    • 6 Baths
    • 4,368 Sq.Ft.
  • 7245 SW 104th St For Sale

    $5,499,000

    0 7245 SW 104th St, Pinecrest, FL 33156

  • 7245 SW 104th St For Sale

    $5,499,000

    7245 SW 104th St, Pinecrest, FL 33156

    • 7 Beds
    • 7 Baths
    • 9,792 Sq.Ft.
  • 7239 E Lago Dr Active Under Contract

    $5,490,000

    7239 E Lago Dr, Coral Gables, FL 33143

    • 5 Beds
    • 5 Baths
    • 4,464 Sq.Ft.
  • 5770 SW 114th Ter For Sale

    $5,475,000

    5770 SW 114th Ter, Pinecrest, FL 33156

    • 6 Beds
    • 6 Baths
    • 4,842 Sq.Ft.
  • 6900 SW 90th St For Sale

    $5,350,000

    6900 SW 90th St, Pinecrest, FL 33156

    • 6 Beds
    • 6 Baths
    • 6,082 Sq.Ft.
  • 2627 S Bayshore Dr # 1803 For Sale

    $5,200,000

    2627 S Bayshore Dr # 1803, Miami, FL 33133

    • 3 Beds
    • 4 Baths
    • 2,640 Sq.Ft.
View All


Work With David

With nearly a decade in real estate and a deep expertise in Miami's luxury market, David Lodice brings a sharp eye for architecture, elite negotiation skills, and a passion for connecting clients with their dream homes—making every transaction seamless and successful.

Follow Me On Instagram