Leave a Message

Thank you for your message. I will be in touch with you shortly.

Explore Properties

Property Description

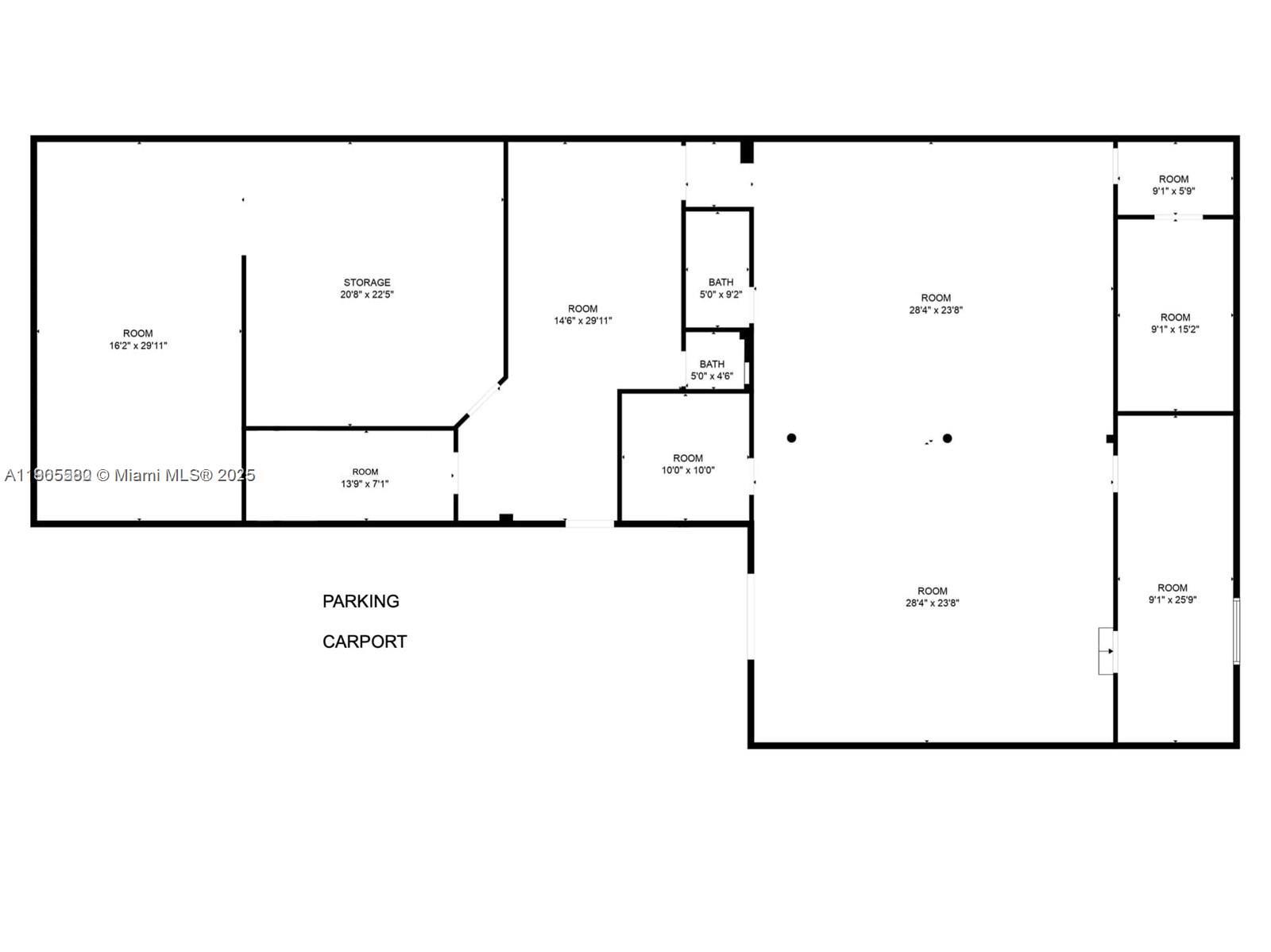
Ideal setup for creatives, small business owners, or anyone needing flexible space to work and build. This property features three private offices (currently used as fully equipped music studios), plus a large warehouse section with two-level racking systems, an open floor plan perfect for coworking or production, and a full kitchen already in place. Private parking for 5 cars with additional space next door if needed. This space can be adapted for manufacturing, storage, distribution, or office use. If interested, the 3 sound-treated studios come with computers and audio systems ready to go. Located just minutes from Downtown with fast access to I-95. Available for Lease with option to Purchase. Contact the agent for full details or a private showing.

Overview

Property Status
For Sale
Lot Size
5,000 Sq.Ft.
MLS ID
A11905580
Property Type
Commercial
Year Built
1947

Features & Amenities

Total Area
4,000 Sq.Ft.
Stories
1
Roof
Other
Parking
Garage-Under Building
Security Features
Security Fence
Sales Price
$8,000
Real Estate Tax
$7,268/yr
Zoning
7000

Downloads

7025 NW 7th Ave Unit: #MAIN

Schedule a Tour

I would love to help you see this beautiful home! As a full-service brokerage, I can help you tour. Please submit an offer, and answer questions about the buying process.

Enter a valid email

Thank you

for your interest in 7025 NW 7th Ave Unit: #MAIN, Miami, FL 33150

back to page
7025 NW 7th Ave Unit: #MAIN
Navigate
7025 NW 7th Ave Unit: #MAIN
explore in 3d

Mortgage Calculator

Estimate your monthly mortgage payment, including the principal and interest, property taxes, and HOA. Adjust the values to generate a more accurate rate.
$0,000 Your Payment 20 15 65
$0,000 Your Payment

Browse My

Exlusive Listings

  • 10 Cannon Point For Sale

    $75,000,000

    10 Cannon Point, Key Largo, FL 33037

    • 12 Beds
    • 13 Baths
    • 5,221 Sq.Ft.
  • 10 Cannon Point For Sale

    $75,000,000

    10 Cannon Point, Key Largo, FL 33037

  • 43 Star Island Dr For Sale

    $48,000,000

    43 Star Island Dr, Miami Beach, FL 33139

    • 8 Beds
    • 11 Baths
    • 11,104 Sq.Ft.
  • 450 Alton Rd Unit: PH1 For Sale

    $47,500,000

    450 Alton Rd Unit: PH1, Miami Beach, FL 33139

    • 6 Beds
    • 8 Baths
    • 9,039 Sq.Ft.
  • 370 S Hibiscus Dr For Sale

    $34,900,000

    370 S Hibiscus Dr, Miami Beach, FL 33139

    • 5 Beds
    • 6 Baths
    • 10,754 Sq.Ft.
  • 18501 Collins Ave # 3704 For Sale

    $29,750,000

    18501 Collins Ave # 3704, Sunny Isles Beach, FL 33160

    • 6 Beds
    • 8 Baths
    • 6,915 Sq.Ft.
  • 555 Arvida Pkwy For Sale

    $28,950,000

    555 Arvida Pkwy, Coral Gables, FL 33156

    • 6 Beds
    • 8 Baths
    • 13,147 Sq.Ft.
  • 1045 N Venetian Dr For Sale

    $19,995,000

    1045 N Venetian Dr, Miami, FL 33139

    • 6 Beds
    • 8 Baths
    • 6,347 Sq.Ft.
  • 284 Las Brisas Ct For Sale

    $14,900,000

    284 Las Brisas Ct, Coral Gables, FL 33143

    • 5 Beds
    • 5 Baths
    • 5,231 Sq.Ft.
  • 5700 SW 91st St For Sale

    $13,333,111

    5700 SW 91st St, Pinecrest, FL 33156

    • 8 Beds
    • 10 Baths
    • 8,105 Sq.Ft.
  • 1643 Brickell Ave Unit: PH4902 For Sale

    $12,950,000

    1643 Brickell Ave Unit: PH4902, Miami, FL 33129

    • 7 Beds
    • 10 Baths
    • 10,000 Sq.Ft.
  • 2627 S Bayshore Dr # 3001 For Sale

    $11,995,000

    2627 S Bayshore Dr # 3001, Miami, FL 33133

    • 5 Beds
    • 8 Baths
    • 6,920 Sq.Ft.
  • 11500 SW 60th Ave For Sale

    $11,950,000

    11500 SW 60th Ave, Pinecrest, FL 33156

    • 8 Beds
    • 9 Baths
    • 8,863 Sq.Ft.
  • 3860 Little Ave For Sale

    $11,895,000

    3860 Little Ave, Miami, FL 33133

    • 7 Beds
    • 9 Baths
    • 5,893 Sq.Ft.
  • 2355 N Meridian Ave For Sale

    $11,495,000

    2355 Meridian Ave, Miami Beach, FL 33140

    • 5 Beds
    • 6 Baths
    • 5,214 Sq.Ft.
  • 5796 SW 91 ST For Sale

    $10,995,000

    5796 SW 91 ST, Pinecrest, FL 33156

    • 7 Beds
    • 10 Baths
    • 8,805 Sq.Ft.
  • 5286 SW 80 Street For Sale

    $10,480,000

    5286 SW 80 Street, Miami, FL 33143

    • 7 Beds
    • 9 Baths
    • 7,512 Sq.Ft.
  • 16745 Berkshire Ct For Sale

    $10,475,000

    16745 Berkshire Ct, Southwest Ranches, FL 33331

    • 6 Beds
    • 8 Baths
    • 11,376 Sq.Ft.
  • 13580 SW 67th Ave For Sale

    $9,995,000

    13580 SW 67th Ave, Pinecrest, FL 33156

    • 8 Beds
    • 11 Baths
    • 11,626 Sq.Ft.
  • 2300 NE 34th Ct For Sale

    $9,990,000

    2300 NE 34th Ct, Lighthouse Point, FL 33064

    • 8 Beds
    • 9 Baths
    • 8,433 Sq.Ft.
  • 5280 SW 80th St For Sale

    $9,870,000

    5280 SW 80th St, Miami, FL 33143

    • 7 Beds
    • 7 Baths
    • 7,075 Sq.Ft.
  • 3940 S Douglas Rd For Sale

    $9,700,000

    3940 S Douglas Rd, Miami, FL 33133

  • 12505 Vista Ln For Sale

    $9,400,000

    12505 Vista Ln, Pinecrest, FL 33156

    • 7 Beds
    • 8 Baths
    • 7,500 Sq.Ft.
  • 1661 Onaway Dr For Sale

    $8,495,000

    1661 Onaway Dr, Miami, FL 33133

    • 6 Beds
    • 7 Baths
    • 6,281 Sq.Ft.
  • 30 Samana Dr For Sale

    $8,390,000

    30 Samana Dr, Coconut Grove, FL 33133

    • 5 Beds
    • 7 Baths
  • 5290 SW 80 Street For Sale

    $8,250,000

    5290 SW 80 Street, Miami, FL 33143

    • 6 Beds
    • 7 Baths
    • 6,361 Sq.Ft.
  • 3470 Poinciana Ave For Sale

    $7,995,000

    3470 Poinciana Ave, Coconut Grove, FL 33133

    • 5 Beds
    • 7 Baths
    • 4,676 Sq.Ft.
  • 102 24th St # 1617 Unit: PH-1617 Pending

    $7,950,000

    102 24th St # 1617 Unit: PH-1617, Miami Beach, FL 33139

    • 3 Beds
    • 4 Baths
    • 2,538 Sq.Ft.
  • 3506 Banyan Cir For Sale

    $7,800,000

    3506 Banyan Cir, Miami, FL 33133

    • 3 Beds
    • 5 Baths
    • 4,040 Sq.Ft.
  • 445 Ridgewood Rd For Sale

    $7,248,000

    445 Ridgewood Rd, Key Biscayne, FL 33149

    • 5 Beds
    • 6 Baths
    • 3,688 Sq.Ft.
  • Coral Gables For Sale

    $7,200,000

    350 Costa Brava Ct, Coral Gables, FL 33143

    • 6 Beds
    • 5 Baths
    • 5,938 Sq.Ft.
  • 6175 SW 128th St For Sale

    $6,995,000

    6175 SW 128th St, Pinecrest, FL 33156

    • 6 Beds
    • 6 Baths
    • 6,530 Sq.Ft.
  • 5440 S State Road 7 Rd For Sale

    $6,900,000

    5440 S State Road 7 Rd, Hollywood, FL 33021

  • 4700 Bay Point Rd For Sale

    $6,850,000

    4700 Bay Point Rd, Miami, FL 33137

    • 5 Beds
    • 4 Baths
    • 5,230 Sq.Ft.
  • 1509 NE 12th Pl For Sale

    $6,750,000

    1509 NE 12th Pl, Miami, FL 33139

    • 5 Beds
    • 7 Baths
    • 4,687 Sq.Ft.
  • 4860 Hammock Lake Dr For Sale

    $6,700,000

    4860 Hammock Lake Dr, Coral Gables, FL 33156

    • 6 Beds
    • 5 Baths
    • 4,377 Sq.Ft.
  • 12475 SW 56th St For Sale

    $5,999,999

    12475 SW 56th St, Miami, FL 33175

  • 300 Biscayne Blvd Way # 2501 For Sale

    $5,999,999

    300 Biscayne Blvd Way # 2501, Miami, FL 33131

    • 5 Beds
    • 6 Baths
    • 3,961 Sq.Ft.
  • 1096 N Venetian Dr Pending

    $5,995,000

    1096 N Venetian Dr, Miami, FL 33139

    • 4 Beds
    • 5 Baths
  • 300 Biscayne Blvd Way # 701 Pending

    $5,995,000

    300 Biscayne Blvd Way # 701, Miami, FL 33131

    • 4 Beds
    • 5 Baths
    • 3,438 Sq.Ft.
  • 4010 Park Ave For Sale

    $5,950,000

    4010 Park Ave, Miami, FL 33133

    • 5 Beds
    • 6 Baths
    • 4,304 Sq.Ft.
  • 650 NE 32nd St Unit: UPH5302 For Sale

    $5,900,000

    650 NE 32nd St Unit: UPH5302, Miami, FL 33137

    • 3 Beds
    • 3 Baths
    • 2,108 Sq.Ft.
  • 3581 E Glencoe St # 502 For Sale

    $5,675,000

    3581 E Glencoe St # 502, Miami, FL 33133

    • 3 Beds
    • 4 Baths
    • 2,978 Sq.Ft.
  • 1451 Brickell Ave Unit: LPH4902 For Sale

    $5,600,000

    1451 Brickell Ave Unit: LPH4902, Miami, FL 33131

    • 3 Beds
    • 3 Baths
    • 2,337 Sq.Ft.
  • 248 Tarpon St For Sale

    $5,595,000

    248 Tarpon St, Tavernier, FL 33070

    • 5 Beds
    • 6 Baths
    • 4,368 Sq.Ft.
  • 7245 SW 104th St For Sale

    $5,499,000

    0 7245 SW 104th St, Pinecrest, FL 33156

  • 7245 SW 104th St For Sale

    $5,499,000

    7245 SW 104th St, Pinecrest, FL 33156

    • 7 Beds
    • 7 Baths
    • 9,792 Sq.Ft.
  • 7239 E Lago Dr Active Under Contract

    $5,490,000

    7239 E Lago Dr, Coral Gables, FL 33143

    • 5 Beds
    • 5 Baths
    • 4,464 Sq.Ft.
  • 5770 SW 114th Ter For Sale

    $5,475,000

    5770 SW 114th Ter, Pinecrest, FL 33156

    • 6 Beds
    • 6 Baths
    • 4,842 Sq.Ft.
  • 6900 SW 90th St For Sale

    $5,350,000

    6900 SW 90th St, Pinecrest, FL 33156

    • 6 Beds
    • 6 Baths
    • 6,082 Sq.Ft.
View All


Work With David

With nearly a decade in real estate and a deep expertise in Miami's luxury market, David Lodice brings a sharp eye for architecture, elite negotiation skills, and a passion for connecting clients with their dream homes—making every transaction seamless and successful.

Follow Me On Instagram